Details
Gallery
Floor Plans
Contact
15 River Road, Branford, CT
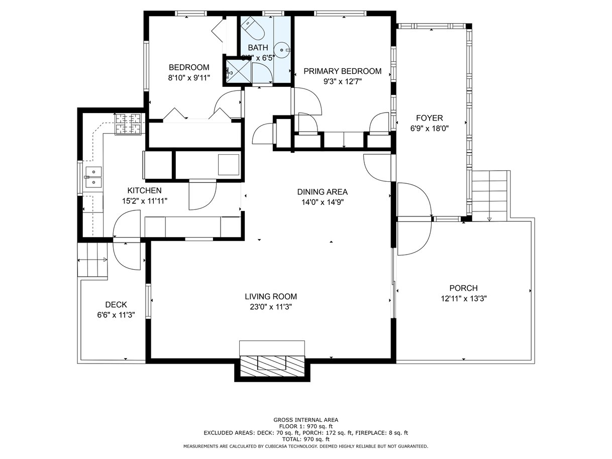
Floor Plans
Floor Plan 1
Contact Us
Jules G. Etes
Real Estate Salesperson
C: 203.687.6997
I'm interested in Video Chat
No
Yes
First Name
Last Name
Email Address
Phone Number
Message
I’m interested in 15 River Road in Branford.
Request Info